Добавить в избраное

Продажа офисов Империя

Москва, Пресненская набережная, 6c2

115 624 654 руб.стоимость

734 591 руб.Цена за кв.м

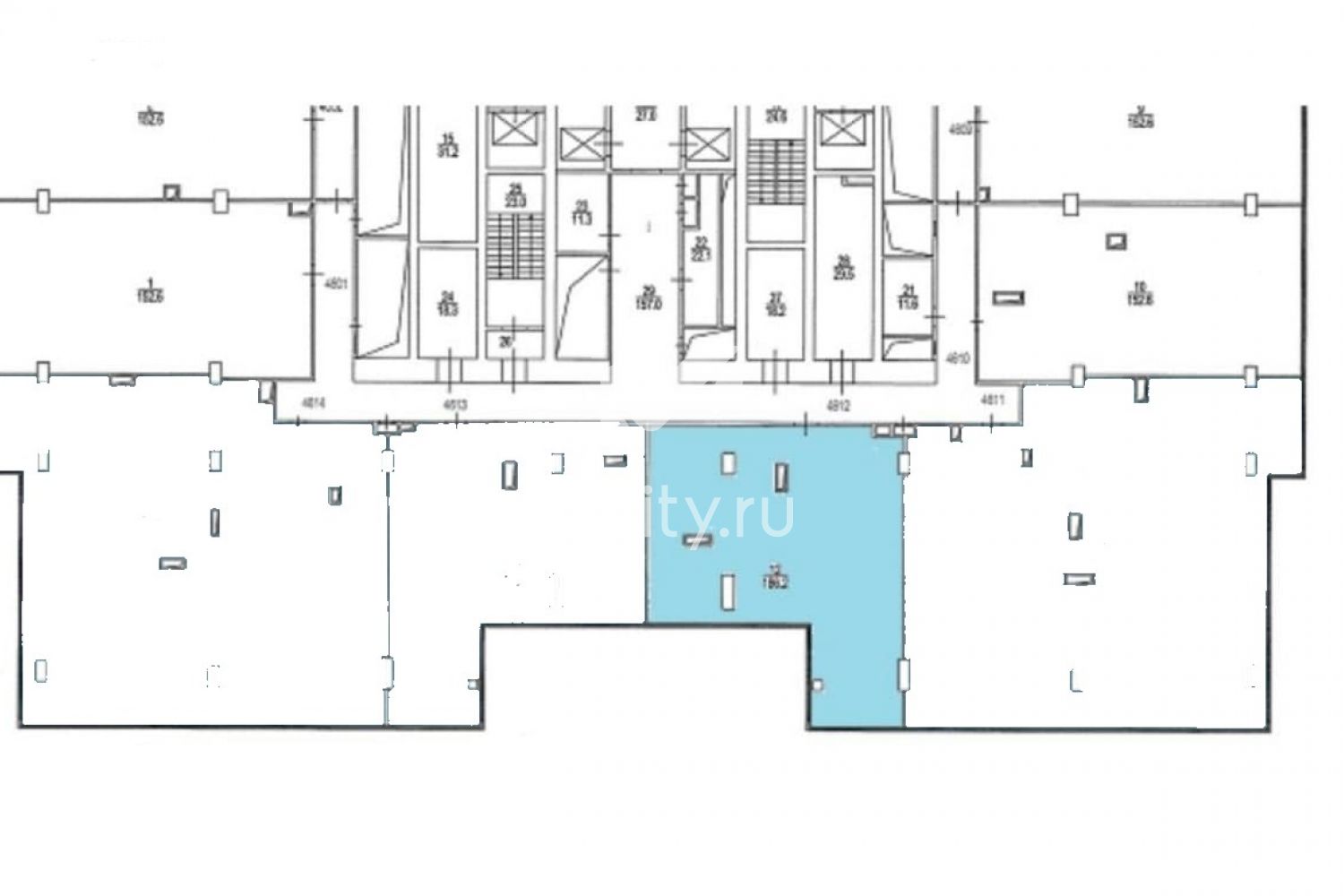
157 кв.мПлощадь

841924ID лота

Объект не актуален
ID:841924. Просторный, светлый офисный блок в башне " Империя ". Общей площадью 157,4 кв.м. Планировкой предусмотрено: два кабинета, open spaсe, два санузла. Интерьер помещения оформлен в современном стиле, с применением высококачественных материалов от ведущих производителей. С панорамным видом на Москва-реку. Комплекс Москва-сити выбрали для себя более 700 компаний, среди них: Правительство Москвы, МЭР, Россельхозбанк, ВТБ, Сбербанк, JTI, Норникель, Уралкалий, Транснефть, Orange Group, Densu Aegis, Кортрос и многие другие Российские и иностранные компании.

Описание комплекса:
Лаконичная и при этом крайне необычная, не похожая ни на одно другое здание в мире «Империя» стала настоящим вызовом для архитектурного бюро NBBJ. Но вызов этот был принят с честью, и теперь башня является подлинным украшением делового квартала. Высота 239 м., всего 62 этажа. В составе комплекса офисы, апартаменты, торговые помещения и машиноместа.
Этаж:Высокий
Отделка:С отделкой
Тип планировки:Открытая
Кабинеты:2
Переговорные:1
Open space:1
Санузел:собственный, 1
Мебель:Нет
Вид на:Река
Планировка:Гардеробная, Кладовка, Кухонная техника
Налогообложение:УСН
Потолки (м):3.3 метра
Дополнительные услуги
Ипотека: Данное помещение можно взять в ипотеку. Условия по ипотеке можно уточнить у нашего ипотечного агента по телефону или оставив заявку
Перегородки: от 3 500 руб. за кв.м. без учета доставки, монтажа и дверей
Мебель: от 15 000 руб. за комплект на 1 сотрудника
Получить подробную информацию
Ваше сообщение успешно отправлено
Мы с Вами свяжемся в ближайшее время
Записаться на просмотр:
Империя, Москва
Адрес: Москва, Пресненская набережная, 6c2 - посмотреть на карте
Паркинг: Скачать карту парковок от 30 000 руб./мес.
Интернет: от 6 000 руб./мес.
Клининг: от 5 000 руб./мес.
Эксплуатация: 96 014 руб./мес.
Налог на имущество: 1,6 %
Арендовать:
Офисы
Апартаменты
Торговые помещения
Аренда
288 000 Р
В месяц
40 000 Р
Цена за м²/год
86 м²
Площадь
ОКО
Аренда
466 500 Р
В месяц
45 000 Р
Цена за м²/год
124 м²
Площадь
Империя
Аренда
791 250 Р
В месяц
45 000 Р
Цена за м²/год
211 м²
Площадь
Империя